Saltar al contenido

MAADO

MAADO es un espacio multidisciplinar de participación para arquitectos, arquitectos técnicos, ingenieros, consultores y otros profesionales del diseño y de la gestión de proyectos destinado tanto a particulares como a Empresas.

  • Inicio
  • Consulting
  • Arquitectura
  • Portfolio
  • Contacto

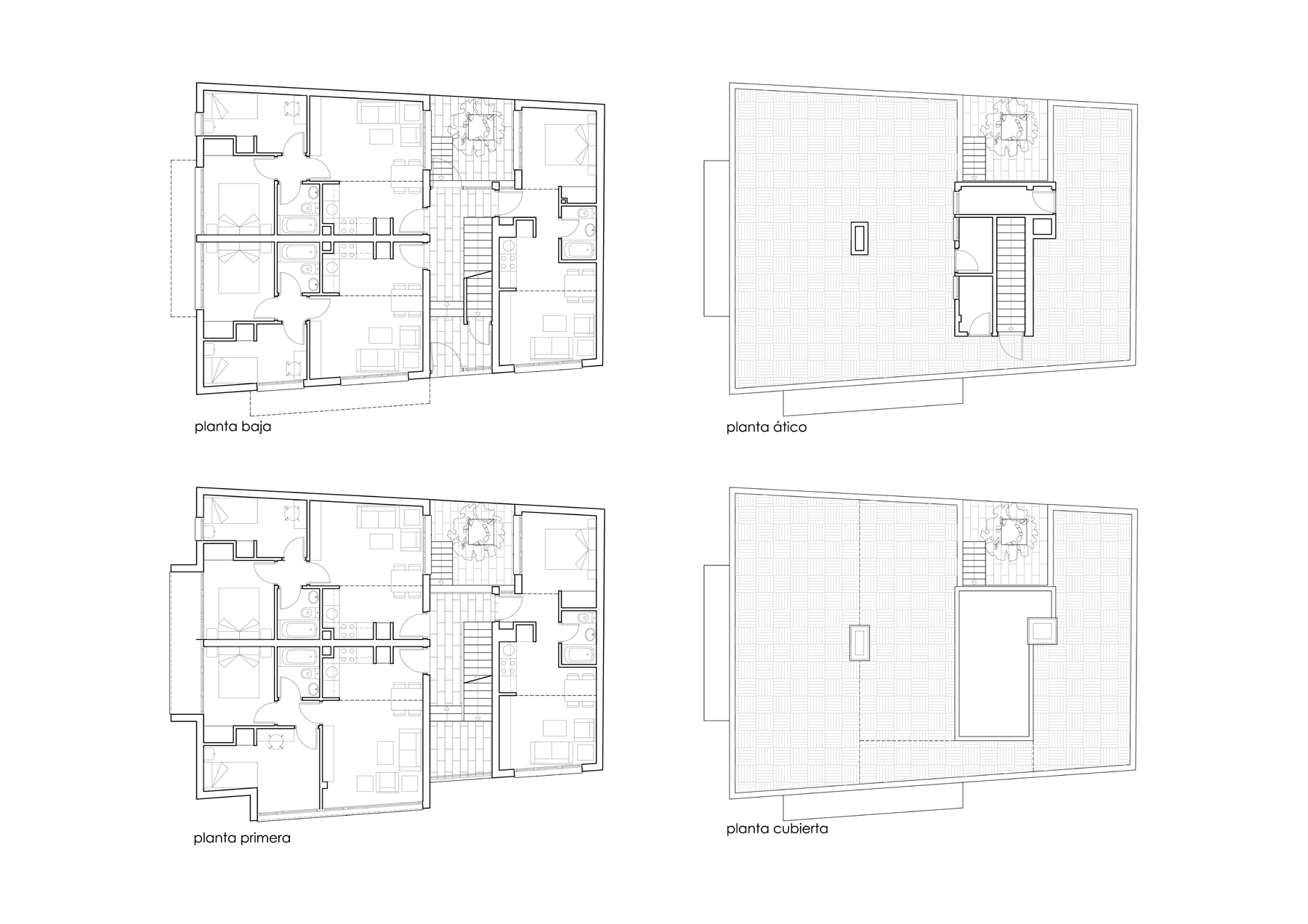
plantas

junio 20, 2016 | Marina Garcia

Navegación de entradas

< plantas
Creado con WordPress | Tema: Sketch por WordPress.com.